Wohnen in der
schönsten Form
Bauprojekte
Als WohnungsBAUgenossenschaft nehmen wir unsere Aufgabe, unseren Wohnungsbestand kontinuierlich weiter zu entwickeln, sehr ernst. Unsere Mitarbeiter aus der Abteilung Projekt- und Facilitymanagement arbeiten täglich an der Umsetzung unserer verschiedenen Bauprojekte. Hier erhalten Sie aktuelle Informationen zu unseren derzeitigen Baumaßnahmen.
Carré Rödelstraße/ Albert-Vater-Straße/ Gagernstraße/ Sickingenstraße
Das Bauprojekt in der Gartenstadt Westernplan in Stadtfeld Ost ist beendet! Im August 2024 werden die letzten Wohnungen übergeben.
Einige Mitglieder konnten bereits glücklich gemacht werden und sind in ihre Traumwohnungen eingezogen.
Weiterlesen … Die besonderen Dachgeschoss-Wohnungen sind vermietet!
Carré Rödelstraße/ Albert-Vater-Straße/ Gagernstraße/ Sickingenstraße
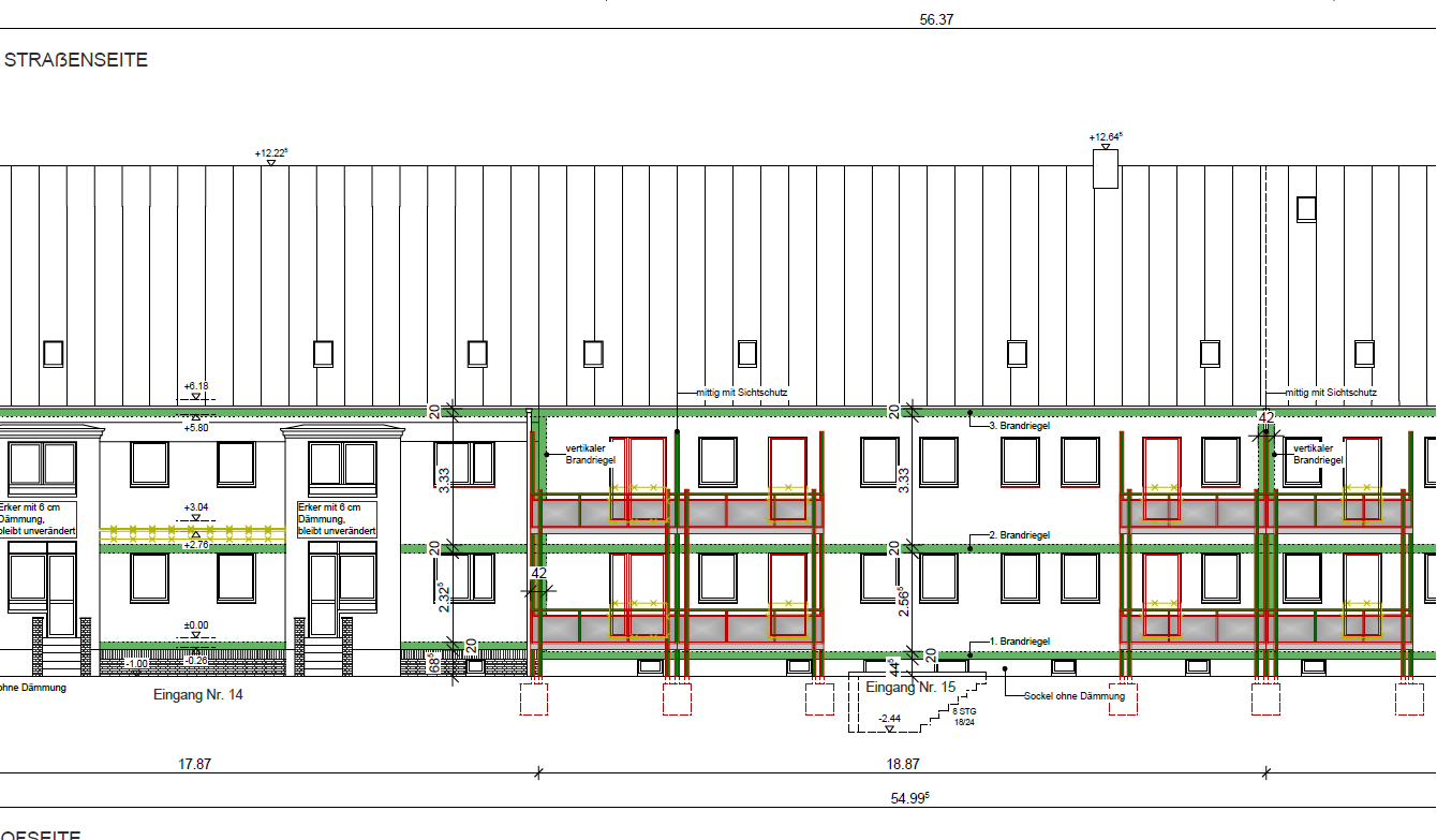
Eines unserer derzeit spannendsten Bauprojekte befindet sich in der Gartenstadt Westernplan in Stadtfeld Ost!
Unsere ersten 10 Dachgeschosswohnungen im sanierten Altbau werden in den nächsten Wochen und Monaten beziehbar sein.
Weiterlesen … Exklusive Dachgeschoss-Wohnungen im Carré Stadtfeld sind zu besichtigen!
Die Preissteigerungen für das Beheizen von Wohnraum sind in aller Munde. Klar, dass wir als Vermieter unsere Unternehmensstrategie anpassen und Lösungen suchen, die es unseren Mitgliedern ermöglichen, gut und bezahlbar zu wohnen.
Eines unserer derzeit spannendsten Bauprojekte befindet sich in der Gartenstadt Westernplan in Stadtfeld Ost!
Für unsere Mitglieder haben wir dort in den vergangenen Monaten Balkone angebaut, Wärmedämmung angebracht und Stellplätze errichtet. Die derzeitige Herausforderung für die 1893 besteht jedoch in der Revitalisierung der über 100 Jahre alten Dachböden.
Weiterlesen … Exklusive Dachgeschoss-Wohnungen im Carré Stadtfeld
Um marktfähig zu sein und den Ansprüchen der Mitglieder gerecht zu werden, modernisiert die Magdeburger Wohnungsbaugenossenschaft von 1893 eG fast jede Wohnung nach dem Leerzug.
...es ist soweit!!! Nachdem viele Mieter aus der Helmholtzstr. 15-45 geduldig in Ihren Wohnungen, hofseitig, die Verlegung einzelner Heizkörper, die Durchbrüche, den Einbau der Balkontüren sowie die anschließende malermäßige Instandsetzung erfolgreich über sich ergehen lassen haben, werden in den nächsten Tagen die Balkone angebaut.